Search

1161 NORTH KAHSHE LAKE ROAD,

Property Overview - House For sale

Price$ 469 900On the Market20398 days
MLS® #X12459220TypeHouse
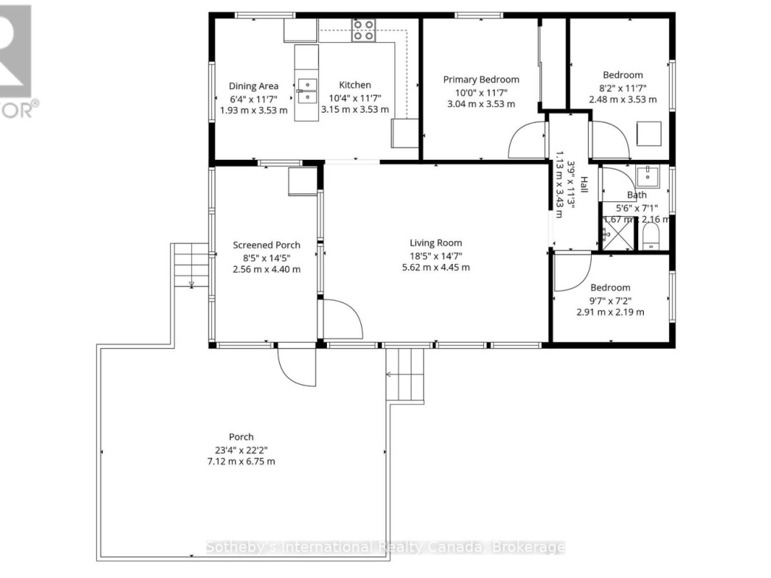
Bedrooms3 BedBathrooms1 Bath
Postal CodeP0E1G0
Property SizeBuilding Size0

Cozy 3-Bedroom Cottage Steps from Kahshe Lake - Your Muskoka Escape Awaits! Welcome to your perfect retreat in the heart of Muskoka! Nestled in the sought-after Kahshe Lake Community, this charming 3-bedroom, 1-bathroom home or cottage offers the ideal blend of comfort, privacy, and outdoor living just 90 minutes from the GTA. Located just steps to beautiful Nagaya Beach, spend your days swimming, paddling, or relaxing lakeside. When you're not at the water, enjoy your own private oasis on a spacious, treed lot complete with a huge 400+ sqft entertaining deck, a level fire pit area for evening bonfires, and a screened-in Muskoka room perfect for unwinding with a book, playing cards, hosting friends etc. Inside, the home is cozy and inviting, featuring warm finishes and an open-concept living space that brings the outdoors in. Whether you're looking for a weekend getaway or a family cottage in one of Muskoka's most beloved lake communities, this property checks all the boxes. Don't miss this opportunity to own a piece of paradise so close to the city, yet worlds away from the hustle and bustle.

Land Details

Size Frontage125
Size Depth158 ft
Lot size125 x 158 FT
Ownership TypeFreehold
Zoning DescriptionRC-4

Building Details

TypeHouse
Property TypeSingle Family
Bathrooms Total1
Bedrooms Above Ground3
Bedrooms Total3
Architectural StyleBungalow
Cooling TypeNone
Exterior FinishWood
Foundation TypeStone
Heating FuelElectric
Heating TypeBaseboard heaters
Utility WaterDrilled Well
View Property on Interactive MapDriving Directions (Google Maps)


This listing of a Single Family property For sale is courtesy of TARA DOYLE from Sotheby's International Realty Canada