Search

24 MCCONNELL CRESCENT,

Property Overview - Row / Townhouse For sale

Price$ 579 000On the Market20402 days
MLS® #X12475631TypeRow / Townhouse
Bedrooms3 BedBathrooms3 Bath
Postal CodeP1L0N7
Property SizeBuilding Size0

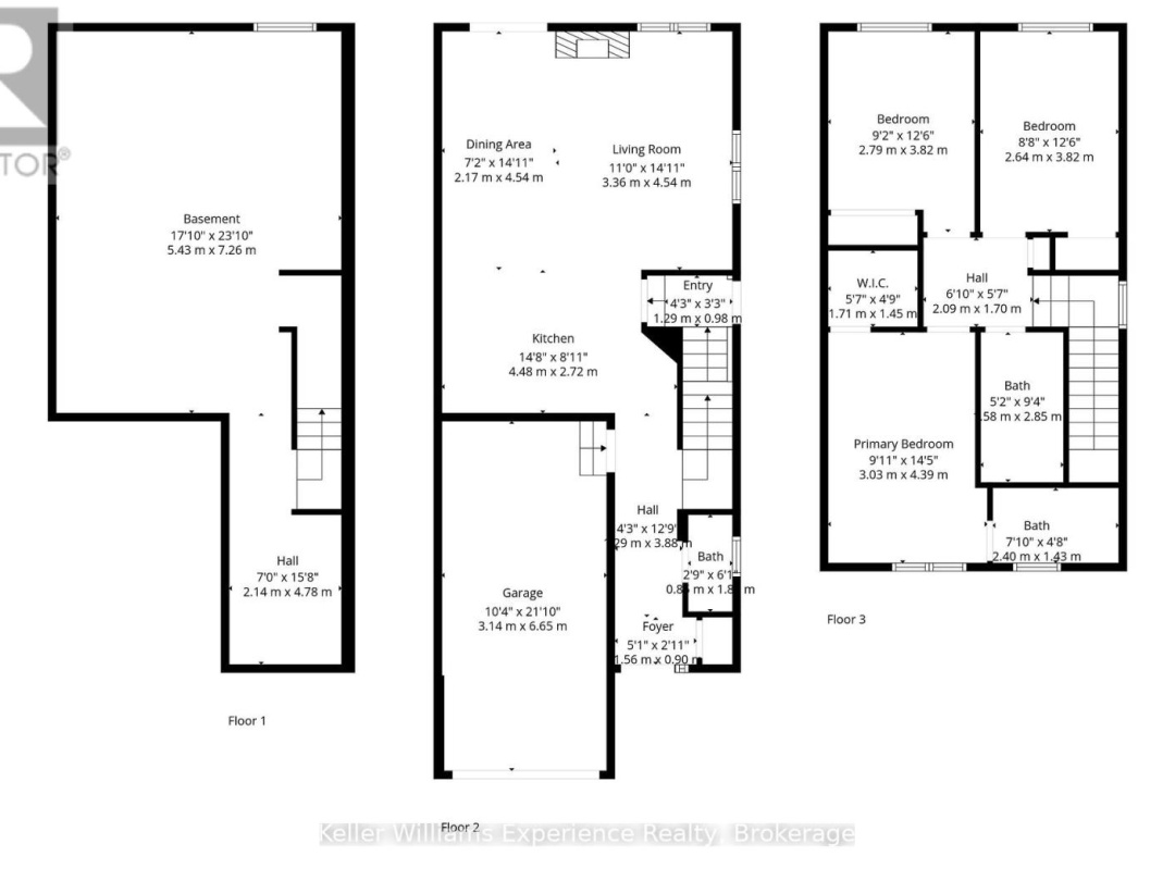
Brand New End Unit Townhome in Prime Bracebridge Location! This newly built 3-bedroom, 3-bathroom townhome is located just off Clearbrook Trail and combines comfort, style, and convenience. Enjoy a bright, open-concept main floor where the kitchen, dining, living, gas fireplace, and outdoor spaces flow seamlessly together-perfect for everyday living and entertaining-while the upper level features spacious bedrooms, including a serene primary suite with private ensuite bath. The unfinished basement offers excellent potential for customization, rental, with rough-in for another bathroom!. As an end unit, enjoy enhanced privacy, extra natural light (more windows), and extra yard space! -- just minutes from the Sportsplex, BMLSS(high school), pool, shops, restaurants, parks, and trails, offering the best of small-town charm and modern convenience in one brand new package! Builder upgrades include flooring, fireplace, side entrance, basement bathroom rough-in, ceiling finishes.

Land Details

Size Frontage25
Size Depth132 ft
Lot size25 x 132 FT
Ownership TypeFreehold

Building Details

TypeRow / Townhouse
Property TypeSingle Family
Bathrooms Total3
Bedrooms Above Ground3
Bedrooms Total3
Cooling TypeNone
Exterior FinishVinyl siding
Foundation TypeConcrete
Half Bath Total1
Heating FuelNatural gas
Heating TypeForced air
Utility WaterMunicipal water

Rooms

Main levelBathroom0.86 m x 1.8 m
View Property on Interactive MapDriving Directions (Google Maps)


This listing of a Single Family property For sale is courtesy of DAVE MCMURRAY from Keller Williams Experience Realty