Search

410 ETWELL ROAD,

Property Overview - House For sale

Price$ 990 000On the Market20405 days
MLS® #X12507884TypeHouse
Bedrooms4 BedBathrooms3 Bath
Postal CodeP1H2J2
Property SizeBuilding Size0

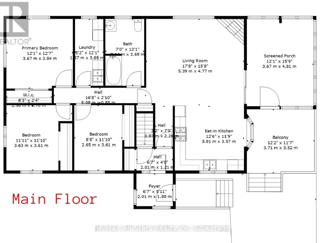
Are you looking for acreage in Muskoka? This private stunning 38+ acres is a naturalist's dream! A gorgeous granite rock face, mature forest and 2 ponds are a picture perfect setting for this lovely 4+ bedroom home. Relax overlooking the pond and listen to the song birds and nature. The updated bungalow boasts a lower level in-law suite with a bedroom, living area, a kitchen, a patio and separate entrances. Plenty of room for family with 3053 sq.ft. of living space on this property! The main floor living area is open concept with a fireplace with a walkout to the sunroom and deck. There is extra space on the lower level to develop more living space too. The insulated garage has an oversized bay for parking and a workbench area, the other side is finished as a soundproof recording studio or use as an artist studio or a guest bunkie. This spacious studio / flat has a 3 pce bath, kitchenette, has a heat pump, and a fireplace for climate control year round. The large barn has 2 covered carports for great storage and it has a large drive-in front door. Potential for a hobby farm, home based business, agriculture endeavors, multi generational home or rental units. Conveniently located just 10 minutes from the vibrant town of Huntsville with all the amenities you need and minutes to beaches, boat launches, marinas and trails. View the virtual tour to get a feel for this exceptional scenic property. This is a must see property with many updated features and a serene Muskoka feel!

Land Details

Size Frontage430
Size Depth1596 ft ,8 in
Lot size430.3 x 1596.7 FT
Ownership TypeFreehold
Zoning DescriptionRural

Building Details

TypeHouse
Property TypeSingle Family
Bathrooms Total3
Bedrooms Above Ground4
Bedrooms Total4
Architectural StyleBungalow
Cooling TypeCentral air conditioning
Exterior FinishBrick, Vinyl siding
Foundation TypeConcrete
Heating FuelPropane
Heating TypeForced air
Utility WaterDrilled Well

Rooms

Main levelMud room2.01 m x 1.8 m
View Property on Interactive MapDriving Directions (Google Maps)


This listing of a Single Family property For sale is courtesy of JANINE SCOTT from Re/Max All-Stars Realty Inc