Search

28 PARK STREET,

Property Overview - House For sale

Price$ 679 900On the Market20401 days
MLS® #S12512544TypeHouse
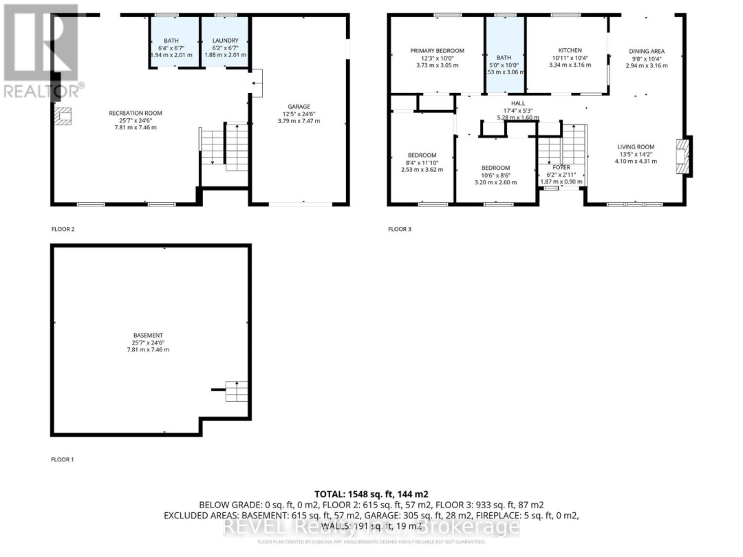
Bedrooms3 BedBathrooms2 Bath
Postal CodeL0K2A0
Property SizeBuilding Size0

Charming 3 bedroom, 2 bathroom home, perfectly located just steps from the beach and marinas, offering the ultimate lifestyle for water lovers. Inside, you'll find a bright, fully finished layout with modern updates through-out. From stylish flooring and lighting to a refreshed kitchen and living area. The attached garage provides convenience and extra storage, while the peaceful setting and friendly community make this the perfect place to call home. Enjoy evening walks by the water, morning coffees on the deck listening to the sounds of nature and the pond and the relaxed small town charm that Victoria Harbour is known for!

Land Details

Size Frontage50
Size Depth125 ft
Lot size50 x 125 FT
Ownership TypeFreehold
Zoning DescriptionR2

Building Details

TypeHouse
Property TypeSingle Family
Bathrooms Total2
Bedrooms Above Ground3
Bedrooms Total3
Architectural StyleRaised bungalow
Cooling TypeCentral air conditioning, Air exchanger
Exterior FinishBrick Veneer, Vinyl siding
Foundation TypeBlock
Heating FuelElectric
Heating TypeForced air
Utility WaterMunicipal water

Rooms

Main levelBedroom3.2 m x 2.6 m
View Property on Interactive MapDriving Directions (Google Maps)


This listing of a Single Family property For sale is courtesy of Andrew Perrie from REVEL Realty Inc., Brokerage